A gantry crane specification typically includes detailed information about the crane’s design, capabilities, and operational parameters. Gantry crane specifications may vary based on the specific application requirements, operational environment, and industry standards. It’s important to carefully review and understand the specifications to ensure that the selected gantry crane meets the desired functionality, performance, and safety criteria for the intended use.

Key Specifications of Gantry Crane
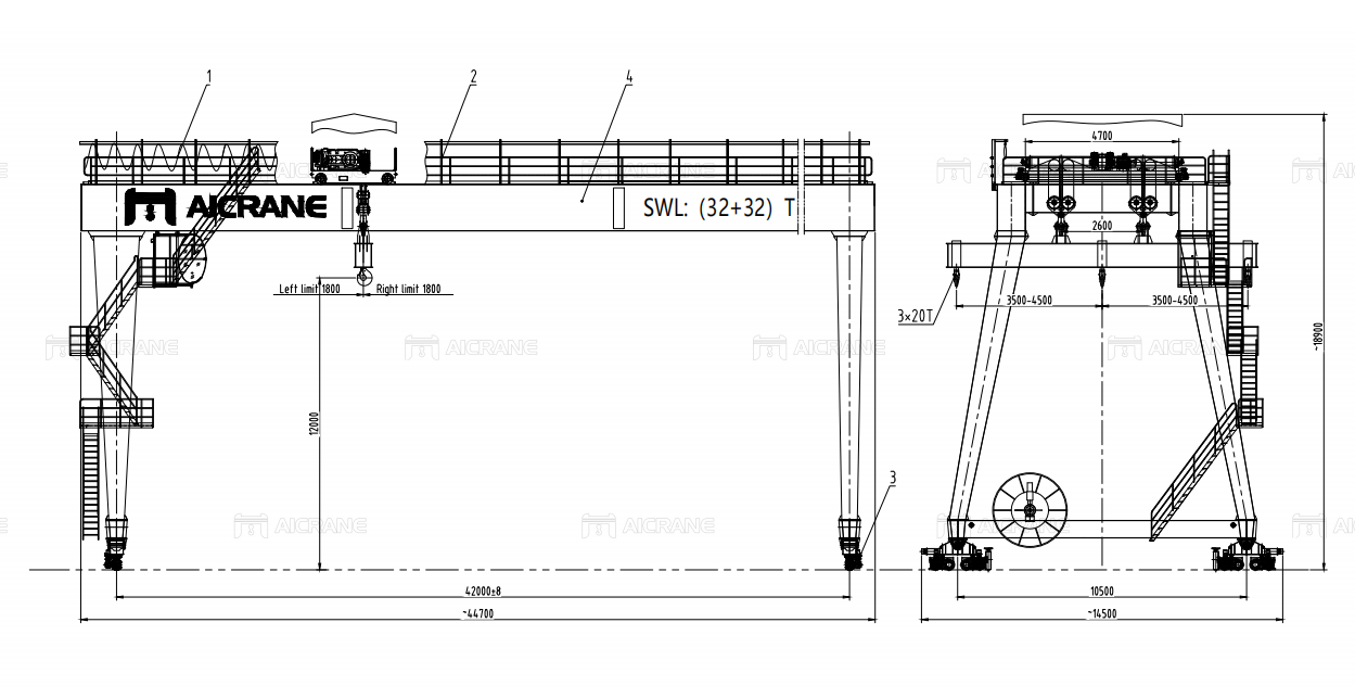
Lifting Capacity
The lifting capacity of a gantry crane is one of the most critical specifications. It refers to the maximum weight that the crane can lift safely without exceeding its structural limitations. Gantry cranes are available in a wide range of capacities, from small units with a few tons of lifting capacity for light-duty applications to large cranes capable of lifting several hundred tons for heavy industrial operations. When selecting a gantry crane, it’s essential to consider the heaviest loads that will be handled to ensure the crane’s capacity meets or exceeds these requirements.
Span
The span of a gantry crane is the distance between the legs or supporting columns that define the working area beneath the crane. This specification determines the width of the area in which the crane can operate. The span should be sufficient to accommodate the layout of the work area, allowing the gantry crane to reach all necessary locations for lifting and moving loads. It’s crucial to consider the available space and layout constraints when determining the appropriate span for a gantry crane.
Lifting Height
Gantry cranes have a specified lifting height, which is the maximum height that the hook or lifting device can reach above the ground or floor level. The lifting height should be adequate to clear obstacles and reach the desired lifting locations within the work area. Factors such as building clearance, stack height of stored materials, and overhead obstructions must be considered when specifying the lifting height of a gantry crane.
Lifting Speed
The lifting speed of a gantry crane refers to how quickly the crane can raise or lower a load. This specification is typically measured in meters per minute (m/min) or feet per minute (ft/min). The lifting speed directly impacts the efficiency of loading and unloading operations. Faster lifting speeds can improve productivity but must be balanced with load stability and safety considerations.
Trolley Traveling Speed
Gantry cranes equipped with a trolley for horizontal movement have a specified travel speed for the trolley. The trolley traveling speed affects the speed at which the crane can position the load along the span of the crane. A faster trolley travel speed can contribute to faster cycle times and increased productivity.
Crane Traveling Speed
The crane traveling speed indicates how fast the entire gantry crane can traverse horizontally along its runway or track. This specification is essential for applications requiring quick positioning of the crane over different work areas. Bridge travel speed influences overall operational efficiency and should be matched to the specific handling requirements of the application.
Control System
Gantry cranes can be operated using manual, semi-automatic, or fully automatic control systems. Modern gantry cranes often feature advanced control systems that provide precise and intuitive operation. Control options may include radio remote control, cabin control, pendant control, or PLC (Programmable Logic Controller) systems. The choice of control system depends on operator preferences, safety considerations, and the complexity of the lifting tasks.
Power Supply
Gantry cranes are powered by electricity (AC or DC), diesel engines, or hydraulic systems. The choice of power supply depends on factors such as availability of electrical infrastructure, environmental regulations, and operational requirements. Electric-powered gantry cranes are common for indoor applications due to their cleanliness and efficiency, while diesel or hydraulic-powered cranes are suitable for outdoor or remote locations.
Operational Environment
Specifications may include details about the operational environment in which the gantry crane will be used. Factors such as indoor or outdoor use, exposure to weather conditions (e.g., rain, wind, temperature extremes), and hazardous area classifications (e.g., explosive atmospheres) must be considered when selecting a gantry crane to ensure compliance with safety and performance standards.
Safety Features
Gantry cranes are equipped with various safety features to protect operators, workers, and equipment. Common safety features include overload protection devices, emergency stop buttons, limit switches to prevent over-travel, audible or visual warning systems, and anti-collision systems to prevent accidents during crane operation. Safety features are essential for ensuring compliance with regulatory standards and maintaining a safe working environment.
Compliance
Gantry cranes must meet specific regulatory and industry standards to ensure safe and reliable operation. Specifications should outline the applicable standards, such as ISO (International Organization for Standardization), OSHA (Occupational Safety and Health Administration), CMAA (Crane Manufacturers Association of America), or other local regulations. Compliance with standards ensures that the gantry crane is designed, manufactured, and operated according to recognized safety and quality guidelines.
Optional Features
Some gantry cranes offer optional features that enhance functionality, efficiency, and safety. Optional features may include variable speed controls for precise positioning, anti-sway systems to reduce load swinging, load monitoring systems for weight measurement, and specialized lifting attachments for handling specific types of cargo. Optional features can be customized based on the unique requirements of the application to optimize crane performance and versatility.

By carefully considering these specifications and factors when selecting a gantry crane, operators can ensure that the crane is well-suited to the intended application, provides optimal performance, and meets safety and regulatory requirements. Consulting with experienced crane manufacturers or suppliers can help identify the most suitable gantry crane configuration to maximize efficiency and productivity in material handling operations.
Different Gantry Crane Types
There are different types of gantry cranes with different specifications to suit various materials handling needs. The main types include single beam gantry crane, double beam goliath crane, rail mounted crane, rubber tyred crane and straddle cranes.
Single Beam Gantry Crane
Single beam gantry crane, also known as single girder gantry crane, is suitable for applications where light to moderate lifting capacities and spans are required. The single girder gantry cranes are commonly used in workshops, warehouses, manufacturing facilities, and assembly lines for handling materials, components, and products. Since there are different types of single girder crane, you can check the following single girder gantry crane specification for your reference while making a choice.

| Technical Parameter of AQ-MH Electric Hoist Gantry Crane | ||||||
| Capacity | t | 3 | 5 | 10 | 16 | 20 |
| Span | S(m) | 8~35 | 8~35 | 8~35 | 8~35 | 8~35 |
| Lifting height | m | 6~18 | 6~18 | 6~18 | 6~18 | 6~18 |
| Lifting speed | m/min | 8(0.8/8) | 8(0.8/8) | 7(0.7/7) | 3.5(0.35/3.5) | 3.3(0.33/3.3) |
| Trolley speed | m/min | 20(30) | 20(30) | 20(30) | 18 | 14 |
| Crane speed | m/min | 20(30) | 20(30) | 20(30) | 20(30) | 20(30) |
| Work duty | A3~A4 | A3~A4 | A3~A4 | A3~A4 | A3~A4 | |
| Track type | P24 | P24 P30 | P30 P38 | P38 | P38 P43 | |

| Technical Parameter of NMH European electric hoist Gantry Crane | ||||||
| Capacity | t | 3.2 | 5 | 10 | 16 | 20 |
| Span | S(m) | 8~35 | 8~35 | 8~35 | 8~35 | 8~35 |
| Lifting height | m | 6~12 | 6~12 | 6~12 | 6~12 | 6~12 |
| Lifting speed | m/min | 0.8/5 | 0.8/5 | 0.8/5 | 0.66/4 | 0.66/4 |
| Trolley speed | m/min | 2~20 | 2~20 | 2~20 | 2~20 | 2~20 |
| Crane speed | m/min | 3~30 | 3~30 | 3~30 | 3~30 | 3~30 |
| Work duty | A5 | A5 | A5 | A5 | A5 | |
| Track type | P24 | P24 P30 | P30 P38 | P30 P38 | P38 P43 | |

| Technical Parameter of AQ-BMH Electric Hoist Semi Gantry Crane | ||||||
| Capacity | t | 3 | 5 | 10 | 16 | 20 |
| Span | S(m) | 8~30 | 8~30 | 8~30 | 8~30 | 8~30 |
| Lifting height | m | 6~18 | 6~18 | 6~18 | 6~18 | 6~18 |
| Lifting speed | m/min | 8(0.8/8) | 8(0.8/8) | 7(0.7/7) | 3.5(0.35/3.5) | 3.3(0.33/3.3) |
| Trolley speed | m/min | 20(30) | 20(30) | 20(30) | 18 | 14 |
| Crane speed | m/min | 20(30) | 20(30) | 20(30) | 20(30) | 20(30) |
| Work duty | A3~A4 | A3~A4 | A3~A4 | A3~A4 | A3~A4 | |
| Track type | P24 | P24 P30 | P30 P38 | P30 P38 | P38 P43 | |

| Technical Parameter of MHZ Electric Single Girder grab Gantry Crane | |||||
| Capacity | t | 2 | 3 | 5 | 10 |
| Span | S(m) | 8-35 | 8-35 | 8-35 | 8-35 |
| Lifting height | m | 6~18 | 6~18 | 6~18 | 6~18 |
| Lifting speed | m/min | 16 | 16 | 16 | 14 |
| Trolley speed | m/min | 20(30) | 20(30) | 20(30) | 20(30) |
| Crane speed | m/min | 20(30) | 20(30) | 20(30) | 20(30) |
| Grab volume | m³ | 0.5 | 0.5 | 0.75 | 1 |
| Work duty | A3~A4 | A3~A4 | A3~A4 | A3~A4 | |
| Track type | P24 P30 | P30 | P30 P38 | P38 P43 | |
Double Beam Gantry Crane
A double beam gantry crane, also known as a double girder gantry crane, is a heavy-duty lifting machine designed for handling large and heavy loads in industrial environments. Double beam gantry cranes are commonly used in steel mills, shipyards, construction sites, and heavy manufacturing industries for lifting and transporting large machinery, equipment, and components.
Different double girder goliath cranes specifications are shown as below for your reference while you are looking for a suitable solution for your business.

| Technical Parameter of AQ-MG Double Girder Gantry Crane | ||||||
| Capacity | t | 5 | 10 | 16 | 20 | 32 |
| Span | S(m) | 18~35 | 18~35 | 18~35 | 18~35 | 18~35 |
| Lifting height | m | 6~18 | 6~18 | 6~18 | 6~18 | 6~18 |
| Lifting speed | m/min | 11.5 | 8.5 | 7.9 | 7.2 | 6 |
| Trolley speed | m/min | 37.2 | 37.4 | 40.1 | 40 | 37 |
| Crane speed | m/min | 37.7 | 37.7 | 40.1 | 40.1 | 38 |
| Work duty | A3-A7 | A3-A7 | A3-A7 | A3-A7 | A3-A7 | |
| Track type | P43 | P43 | P43 QU70 | P43 QU70 | P50 QU80 | |
| Capacity | t | 50 | 75 | 100 | 160 | 200 |
| Span | S(m) | 18~35 | 18~35 | 18~35 | 18~35 | 18~35 |
| Lifting height | m | 6~18 | 6~18 | 6~18 | 6~18 | 6~18 |
| Lifting speed | m/min | 5.9 | 4.7 | 3.9 | 3.5 | 3.5 |
| Trolley speed | m/min | 31.3 | 38.2 | 33.9 | 22.5 | 29 |
| Crane speed | m/min | 44 | 38.3 | 32.3 | 28 | 28 |
| Work duty | A3-A7 | A3-A7 | A3-A7 | A3-A7 | A3-A7 | |
| Track type | QU80 | QU80 | QU100 | QU100 | QU100 | |
| Capacity | t | 250 | 320 | 400 | 450 | 500 |
| Span | S(m) | 18~35 | 18~35 | 18~35 | 18~35 | 18~35 |
| Lifting height | m | 6~18 | 6~18 | 6~18 | 6~18 | 6~18 |
| Lifting speed | m/min | 2.2 | 2.3 | 1.5 | 1.5 | 1.5 |
| Trolley speed | m/min | 28 | 16.6 | 10 | 10 | 11.5 |
| Crane speed | m/min | 50 | 28 | 18 | 18 | 16 |
| Work duty | A3-A7 | A3-A7 | A3-A7 | A3-A7 | A3-A7 | |
| Track type | QU120 | QU120 | QU120 | QU120 | QU120 | |

| Technical Parameter of AQ-BMG Double Girder Semi Gantry Crane | ||||||
| Capacity | t | 5 | 10 | 16 | 20 | 32 |
| Span | S(m) | 12~30 | 12~30 | 12~30 | 12~30 | 12~30 |
| Lifting height | m | 6~12 | 6~12 | 6~12 | 6~12 | 6~12 |
| Lifting speed | m/min | 11.5 | 8.5 | 7.9 | 7.2 | 6 |
| Trolley speed | m/min | 37.2 | 37.4 | 40.1 | 40 | 37 |
| Crane speed | m/min | 37.7 | 37.7 | 40.1 | 40.1 | 38 |
| Work duty | A3~A6 | A3~A6 | A3~A6 | A3~A6 | A3~A6 | |
| Track type | P43 | P43 | P43 QU70 | P43 QU70 | P50 QU80 | |

| Technical Parameter of AQ-MDU Double Girder Gantry Crane | |||||||
| Capacity | t | 10 | 16 | 20 | 32 | 40 | 50 |
| Span | S(m) | 18~35 | 18~35 | 18~35 | 18~35 | 18~35 | 18~35 |
| Lifting height | m | 6~18 | 6~18 | 6~18 | 6~18 | 6~18 | 6~18 |
| Lifting speed | m/min | 13.3 | 7.9 | 7.2 | 6 | 5.9 | 5.9 |
| Trolley speed | m/min | 37.4 | 40.1 | 40 | 37 | 31.3 | 31.3 |
| Crane speed | m/min | 41 | 40.1 | 44 | 40.1 | 40.1 | 40.1 |
| Work duty | A5-A6 | A5-A6 | A5-A6 | A5-A6 | A5-A6 | A5-A6 | |
| Track type | P43 | P43 QU70 | QU70 | QU80 | QU80 | QU100 | |

| Technical Parameter of AQ-MZ Grab Bucket Gantry Crane | |||||
| Capacity | t | 5 | 10 | 16 | 20 |
| Span | S(m) | 18~35 | 18~35 | 18~35 | 18~35 |
| Lifting height | m | 6~18 | 6~18 | 6~18 | 6~18 |
| Lifting speed | m/min | 39.3 | 39.3 | 32.7 | 30.7 |
| Trolley speed | m/min | 44.6 | 31.7 | 31.1 | 31.1 |
| Crane speed | m/min | 37.7 | 37.7 | 40.1 | 40.1 |
| Work duty | A5-A7 | A5-A7 | A5-A7 | A5-A7 | |
| Track type | P43 QU70 | P43 QU70 | QU70 | QU70 | |
Rail Mounted Gantry Crane
Rail mounted gantry (RMG) cranes are specialized lifting machines used in container terminals and rail yards for efficient cargo handling. The rail mounted cranes can be equipped with different spreaders to handle different sizes of containers. The rail mounted gantry crane specifications are shown as below:

| Technical Parameter of AQ-RMG Track-type container Gantry Crane | ||||||
| Capacity | t | 30 | 35 | 40.5 | 45 | 50 |
| Span | S(m) | 18~35 | 18~35 | 18~35 | 18~35 | 18~35 |
| Lifting height | m | 12.3~21 | 12.3~21 | 12.3~21 | 12.3~21 | 12.3~21 |
| Lifting speed | m/min | 12.5 | 9.5 | 10 | 9.8 | 9.2 |
| Trolley speed | m/min | 56 | 48 | 48 | 45 | 45 |
| Crane speed | m/min | 50 | 44.3 | 44.3 | 42 | 42 |
| Container | 20′ 40′ | 20′ 40′ 45′ | 20′ 40′ 45′ | 20′ 40′ 45′ | 20′ 40′ 45′ | |
| Work duty | A6~A8 | A6~A8 | A6~A8 | A6~A8 | A6~A8 | |
| Track type | QU80 | QU80 QU100 | QU80 QU100 | QU100 QU120 | QU100 QU120 | |
Rubber Tyred Gantry Crane
Rubber tyred gantry cranes have wide applications, including precast yard, construction site, manufacturing facility and other places. This type of rubber gantry crane has high mobility and versatility to suit different materials handling requirements.

Rubber tyred gantry crane specification
- Load capacity: 5-500t
- Span: 5-35m
- Lifting height: 6-18m
- Lifting speed: 1-10m/min
- Hoist running speed: 2-20m/min
- Crane running speed: 3-30m/min
- Work duty: A3-A5
Straddle Carrier Gantry Crane
Straddle carrier cranes are generally used to handle heavy bridge beams and other large and heavy-duty items on construction site, prefab yard and other places.
Specifications of straddle carrier for precast yard

| Technical parameters | |
| Rated Lifting Capacity | 50-900 ton |
| Span | 5~40 meter |
| Maximum Lifting Height | 5~20 meter |
| Steering Method | Independent steering driven by hydraulic cylinders |
| Travel Method | Tire-type hydraulic driving |
| Trolley Full Load Lateral Travel Speed | 0~5 m/min |
| Trolley Empty Load Lateral Travel Speed | 0~10 m/min |
| Trolley Empty Load Lifting Speed | 0~6 m/min |
| Trolley Full Load Lifting Speed | 0~3 m/min |
| Crane Full Load Travel Speed | 0~10 m/min (on even ground) |
| Crane Empty Load Travel Speed | 0~20 m/min (on even ground) |
| Operating Environment Temperature | 0°C~+50°C |
| Operating Environment Wind Speed | Working ≤ 6 (wind speed 20 m/s), Non-working ≤ 11 (wind speed 42 m/s) |
Specifications of straddle carrier for cross-line construction

| Technical parameters | |
| Rated Lifting Capacity | 50-900 ton |
| Span | 10~40 meter |
| Lifting Height (from ground to top of box beam) | 5~40 meter |
| Steering Method | Independent steering driven by hydraulic cylinders |
| Travel Method | Tire-type hydraulic driving |
| Gradient | ±2% |
| Trolley Full Load Lateral Travel Speed | 0~5 m/min |
| Trolley Empty Load Lateral Travel Speed | 0~10 m/min |
| Trolley Empty Load Lifting Speed | 0~6 m/min |
| Trolley Full Load Lifting Speed | 0~3 m/min |
| Crane Full Load Travel Speed | 0~15 m/min (on even ground) |
| Transporter Empty Load Travel Speed | 0~30 m/min (on even ground) |
| Operating Environment Temperature | 0°C~+50°C |
| Operating Environment Wind Speed | Working ≤ 6 (wind speed 20 m/s), Non-working ≤ 11 (wind speed 42 m/s) |
Why Gantry Crane Specification Is Important?
Gantry crane specification is critically important for several reasons:
- Safety: Detailed specifications ensure that the gantry crane is designed and built to safely handle specific loads and operate within defined parameters. This includes factors like lifting capacity, span, and environmental considerations to prevent accidents and ensure operator safety.
- Operational Efficiency: Specifications such as lifting speeds, control systems, and power supply directly impact the crane’s efficiency in material handling operations. Optimized specifications lead to smoother and more productive workflows.
- Compatibility: By understanding the gantry crane’s specifications, operators can ensure that it is compatible with the facility’s layout, available space, and infrastructure. This includes considerations like span, height under hook, and power requirements.
- Equipment Longevity: Properly matching the crane’s specifications to operational demands helps extend its lifespan and reduce maintenance costs. Overloading or operating outside specified parameters can lead to premature wear and tear.
- Compliance and Regulations: Gantry crane specifications often align with industry standards and regulatory requirements. Ensuring compliance with these standards is crucial for legal and insurance purposes, as well as maintaining a safe work environment.
- Cost-Effectiveness: Selecting a gantry crane with appropriate specifications based on operational needs and workload can optimize investment costs. Oversized or underutilized equipment can lead to unnecessary expenses.
- Performance Optimization: Each specification contributes to the overall performance of the gantry crane. From lifting capacity to control systems, the right specifications enhance crane functionality and effectiveness in completing lifting tasks.
- Risk Mitigation: Comprehensive specifications mitigate risks associated with crane operations. Features like safety devices, environmental considerations, and duty classes are designed to minimize potential hazards and ensure reliable performance.
Gantry crane specifications are important in ensuring safe, efficient, and reliable crane operations. They provide a roadmap for selecting, operating, and maintaining the right equipment for specific applications, ultimately contributing to improved productivity, reduced downtime, and enhanced workplace safety. Understanding and adhering to these specifications is essential for optimizing crane performance and achieving operational goals.
Aicrane is professional and experienced in designing and manufacturing different gantry cranes to match various lifting requirements. If you are interested in knowing more information about gantry cranes or would like to get a crane, you can just contact us and we will provide you with a suitable and cost-effective crane solution to meet all your work needs.







